Основная задача, решаемая системой КОМПАС-Строитель— создание рабочей документации (чертежи, схемы, расчетно-пояснительные записки) с поддержкой высокой скорости работы. Программа автоматизирует рутинные операции по созданию и оформлению документации. Инструменты системы четко ориентированы на нормативы, регламентирующие оформление строительных чертежей согласно стандартам СПДС.
Для кого предназначена эта система?
КОМПАС-Строитель может быть полезен проектным организациям, инженерным службам, которые хотят повысить качество выпускаемой документации и при этом избежать значительных затрат.
Возможности КОМПАС-Строитель позволяют работать с чертежами, созданными в других CAD-системах, сохранять файлы в форматы dxf, dwg, pdf. Корректная обработка форматов dxf/dwg и поддержка старых версий этих форматов обеспечит комфортную работу с существующим архивом файлов.
Решаемые задачи:
- Быстрый выпуск проектной и рабочей документации;
- Создание фрагментов (узлов строительных конструкций);
- Создание расчетно-пояснительных записок, технических требований и прочих инженерных документов;
- Оперативная проверка документов.

Компоненты КОМПАС-Строитель
- Чертежно-графический редактор;
- Инженерный текстовый редактор;
- Архитектура: АС/АР;
- Инструменты оформления по СПДС;
- Каталог строительных элементов;
- Проверка документации;
- Сервисные инструменты.
Чертежно-графический редактор по своему функционалу близок к уже зарекомендовавшему себя КОМПАС-График — мы взяли из него многие необходимые и полезные инструменты, достаточные для качественного строительного черчения.
Инженерный текстовый редактор работает в виде отдельного документа для создания пояснительных записок с оформлением по ГОСТ, а также с текстом в чертеже. Инструменты редактора позволяют размещать в тексте различные объекты: таблицы, шаблоны, специальные символы, фрагменты чертежей и растровые объекты. Проверяет орфографию на разных языках.
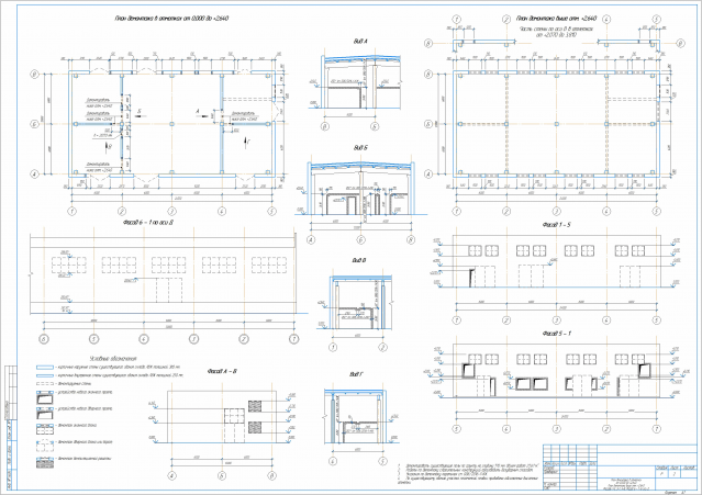
Архитектура: АС/АР предоставляет возможность вычерчивать планы и разрезы зданий и сооружений, используя простые инструменты и объекты: стены, проемы, колонны, лестницы и другие. Позволяет максимально быстро создать строительную подоснову для проектирования внутренних инженерных систем и сетей. Конструкции стены могут иметь различную форму, стиль (одно- и многослойные) и тип (несущая стена или перегородка). Пользователю доступно свободное сопряжение любой сложности стыков и соединений. Специализированные инструменты позволяют выполнить групповое изменение свойств объектов, расчет площади помещений.
Инструменты оформления по СПДС ориентированы на ускорение оформления документации для строительства в соответствии с требованиями ГОСТ Р 21.1101-2013 «СПДС. Основные требования к проектной и рабочей документации».
Каталог строительных элементов содержит структурированный набор типовых элементов для разных разделов проекта: сортамент металлопроката, железобетонные конструкции, элементы систем жизнеобеспечения и многое другое. Предусмотрена возможность создания собственных строительных элементов и добавления их в каталог для хранения. Количество добавляемых элементов не ограничено. Функционал позволяет не просто создавать, сохранять и применять новые элементы в проектах, но и обмениваться ими с коллегами.

Продукт создан на основе популярной системы КОМПАС-График, освоить его будет достаточно легко. Краткое руководство Азбука КОМПАС-Строитель поможет быстро освоить систему и успешно ее использовать в работе.
Для пользователей, которые переходят в нашу систему из других графических систем, создан специальный профиль. Его применение адаптирует интерфейс КОМПАС-Строитель под стандарты, наиболее привычные пользователям других CAD-систем.

АСКОН, как и многие разработчики САПР, является членом Open Design Alliance (opendwg). Поэтому КОМПАС-Строитель, используя форматы файлов КОМПАС-3D — CDW, FRW, KDW, отлично понимает (читает и записывает) форматы DXF/DWG.
Чем отличается КОМПАС-Строитель от других САПР?
- КОМПАС-Строитель – это российский, по-настоящему профессиональный продукт;
- Создан на основе технологий КОМПАС-График, качество которых оценили тысячи пользователей;
- Удобство инструментов, доступность технической поддержки, соответствие отечественной методологии проектирования и стандартам на оформление документации;
- Справочная информация и руководство пользователя доступны на русском языке;
- Минимальное время освоения;
- Льготная ценовая политика и низкая стоимость владения.
Реализуя эффективное и экономичное инвестирование в информационные технологии сейчас, предприятия-пользователи получают хорошую возможность продолжить путь к комплексной автоматизации.
-
Телефон (многоканальный): (4872) 70-02-70; доб. 194
Тесакова Евгения Юрьевна
Должность: руководитель сметно-договорного отдела
E-mail: 194@sfx-tula.ru -
Телефон (многоканальный): (4872) 70-02-70; доб. 224
Шельдяев Дмитрий Сергеевич
Должность: менеджер направления
E-mail: 224@sfx-tula.ru


Заявка
Заявка
Инфоблог
